SIFONI
Opis
A107533
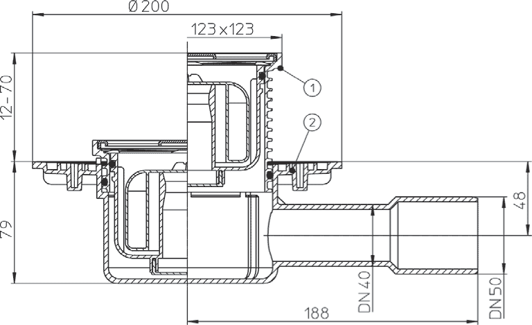
HL TALNI ODTOK DN40/50 S SMRADNO ZAPORO
123×123 mm/115×115 mm (HL510Prblue)
Horizontalni talni odtok DN40/50 s tesnilno prirobnico, smradno zaporo PRIMUS (deluje brez vode), skrajšljivim okvirnim nastavkom 14-77 mm/147×147 mm in nerjavečo jekleno rešetko. Vgradna zaščita je zajeta z dobavo.
Material: PE
Kapaciteta: 0,5 l/s
Vgradna višina: 93 mm
SKICA:



